FirstClassReal Consulting GmbH --- www.FirstClassReal.com --- FN 195082k
8010 Graz, Semmelweisgasse 6 Tel.: 0316/ 37 17 18 -- Fax.: 371718-66
office@FirstClassReal.com
| |
|
|
| |
| O2100167478 [] |
[Druckansicht] [Anfrage absenden] |
|
| Moderne 3-Zimmer-Neubauwohnung mit Balkon und Tiefgarage bei Mur-Radweg/Andritz - Neugasse |
|
Diese traumhaftes Neubau-Apartment besticht neben dem erstklassigen Zustand, vor allem durch die gut durchdachte Raumaufteilung und den schönen Balkon.
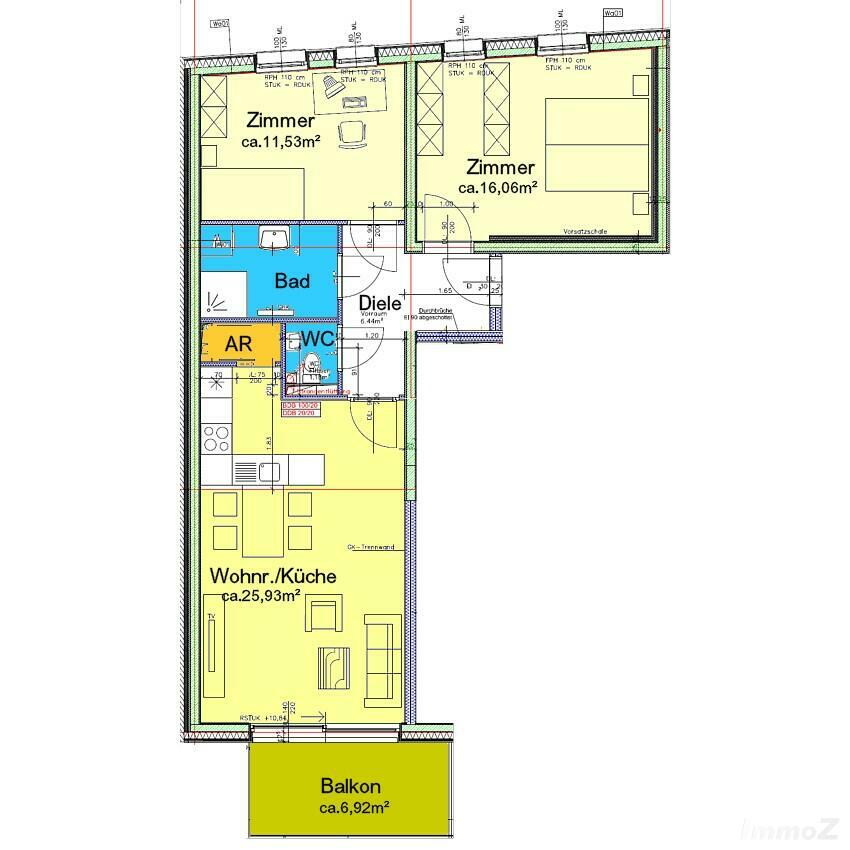
Die moderne Wohnung besteht aus Diele, Wohnraum mit Küche und Balkon, 2 Zimmern, Abstellraum, Bad und WC.
Des weiteren gehört noch ein Kellerabteil zur Wohnung.
Ein Tiefgaragenplatz ist in der Miete inkludiert - ein zweiter Stellplatz kann um EUR 75,- pro Monat dazu gemietet werden.
Das Objekt ist ab 01.03.2026 beziehbar und die Anmietung ist für den Mieter provisionsfrei.
Besonderheiten: Die angeführte wertgesichert Miete enthält auch das BK- und HK-Aconto, welche jährlich abgerechnet werden. |
 [Plan-Skizze]
[Bildergalerie] [10 Bilder] |
|
Beschreibung
|
Ausstattung
|
|
| Lage: |
8045 Graz,12.Bez.:Andritz Steiermark - Österreich |
| |
[
Karte anzeigen
] |
Andritz an der Grenze zu Geidorf
Nähe Murradweg
|
| Objektart: |
Mietwohnung (Hauptmiete) |
| Baujahr: |
2011 |
| Alt-/Neubau: |
Neubau ab 1945 |
| Gesamtnutzfläche: |
ca. 66,90 m² |
| Balkon: |
ja |
| cell |
cell |
| Zimmer: |
3 |
|
| Fenster: |
Kunststoff |
| Boden: |
Parkett-/Holzboden |
| Heizung: |
Haus-Zentralheizung |
| Autoabstellplatz: |
Tiefgaragenplatz |
| Möbel: |
unmöbliert |
| Küche: |
komplett |
| Lift: |
vorhanden |
| Badezimmer: | 1 | | WC (separat): | 1 | | Ausstattung Bad: | Waschmaschinenanschluss / Fenster |
| Zufahrt: |
öffentliche Straße |
| Wasser: |
ja |
| Strom: |
ja |
| Kanal: |
vorhanden |
| Telefon: |
ja |
|
| Energieausweis: |
|
| HWB: | 28,01 kWh/(m²a) | B |
|
|
Infrastruktur
|
Kosten
|
|
| Öffentl. Verkehrsmittel: |
GVB vor dem Haus |
| Einkaufen: |
mehrere wenige Min. mit Auto |
| Schule: |
mehrere wenige Min. mit Auto |
| Arzt: |
mehrere wenige Min. zu Fuß |
|
| Mietzins: | 715,56 EUR (+ 10% MwSt. 71,56 EUR) | | Betriebskosten: | 163,91 EUR (+ 10% MwSt. 16,39 EUR) | | Heizkosten: | 51,51 EUR (+ 20% MwSt. 10,30 EUR) | | Parkplatz: | 62,50 EUR (+ 20% MwSt. 12,50 EUR) | | Summe: | 993,48 EUR (+ MwSt. 110,75 EUR) |
| Miete mtl.: |
1.104,23 EUR inkl. BK, HK und gesetzl. USt. zzgl. Strom |
| Kaution: |
3.350,- EUR als Überweisung |
| Provision: |
provisionsfrei |
| beziehbar: |
sofort |
| Befristung: |
befristet auf 5 Jahre |
|
|
Kontakt
|
| |
) |
Ansprechpartner:
Markus Melcher
M: +43 664 543 8200 Melcher@FirstClassReal.com |
|
| [] [Druckansicht] |
[Anfrage absenden] |
|
|
| |
|
|
Diese traumhaftes Neubau-Apartment besticht neben dem erstklassigen Zustand, vor allem durch die gut durchdachte Raumaufteilung und den schönen Balkon.
Die moderne Wohnung besteht aus Diele, Wohnraum mit Küche und Balkon, 2 Zimmern, Abstellraum, Bad und WC.
Des weiteren gehört noch ein Kellerabteil zur Wohnung.
Ein Tiefgaragenplatz ist in der Miete inkludiert - ein zweiter Stellplatz kann um EUR 75,- pro Monat dazu gemietet werden.
Das Objekt ist ab 01.03.2026 beziehbar und die Anmietung ist für den Mieter provisionsfrei.
Moderne 3-Zimmer-Neubauwohnung mit Balkon und Tiefgarage bei Mur-Radweg/Andritz - Neugasse
Wir weisen darauf hin, dass wir bei diesem Objekt NICHT als Doppelmakler tätig sind!
Alle Preisangaben (z.B. Kaufpreis, Miete) sind exkl. Nebenkosten und Maklerhonorar. Alle Angaben sind ca. Angaben - Irrtümer und Änderungen vorbehalten. WIR FREUEN UNS ÜBER JEDEN KONTAKT !! Geben Sie uns Ihre Wünsche bekannt und wir suchen die geeignete Immobilie auch mit Hilfe von anderen Immobilienbüros unseres Vertrauens. Melden Sie sich bitte unbedingt auch, wenn Sie eine Immobilie zu verkaufen oder zu vermieten haben. Wir haben viele vorgemerkte Interessenten und kaufen auch immer wieder selbst an. FirstClassReal Consulting GmbH
|